PROJEKTY

 

O NÁS

Ing.arch. MARTA ŠIMONÍKOVÁ
absolvovala fakultu architektury ČVUT Praha r.1990
autorizovaná architektka ČKA, č. autorizace 2044

Ing. TOMÁŠ PINKAVA
absolvoval fakultu stavební ČVUT Praha r.1983
autorizovaný inženýr ČKAIT, č. autorizace 4856

 

KONTAKT

CONSILIUM ai, s.r.o.

POHOŘELEC 3/152
118 00 PRAHA 1 – HRADČANY

telefon:
+420 777294286
+420 777650816

e-mail:
consiliumai@consiliumai.cz

www:
www.consiliumai.cz

ič:
288 86 241

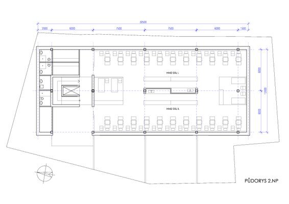
HEMODIALYZAČNÍ STŘEDISKO BULOVKA

Hemodialyzační středisko B.BRAUN na Bulovce, Praha 8

datum
návrh 1/2009
investor
B.BRAUN Avitum s.r.o.